01 46 99 77 77

Boulogne-Billancourt
appartement

pour visiter ce bien ...

Contactez-nous

appartement

Boulogne-Billancourt

1 040 000 €*

REF 92011-207

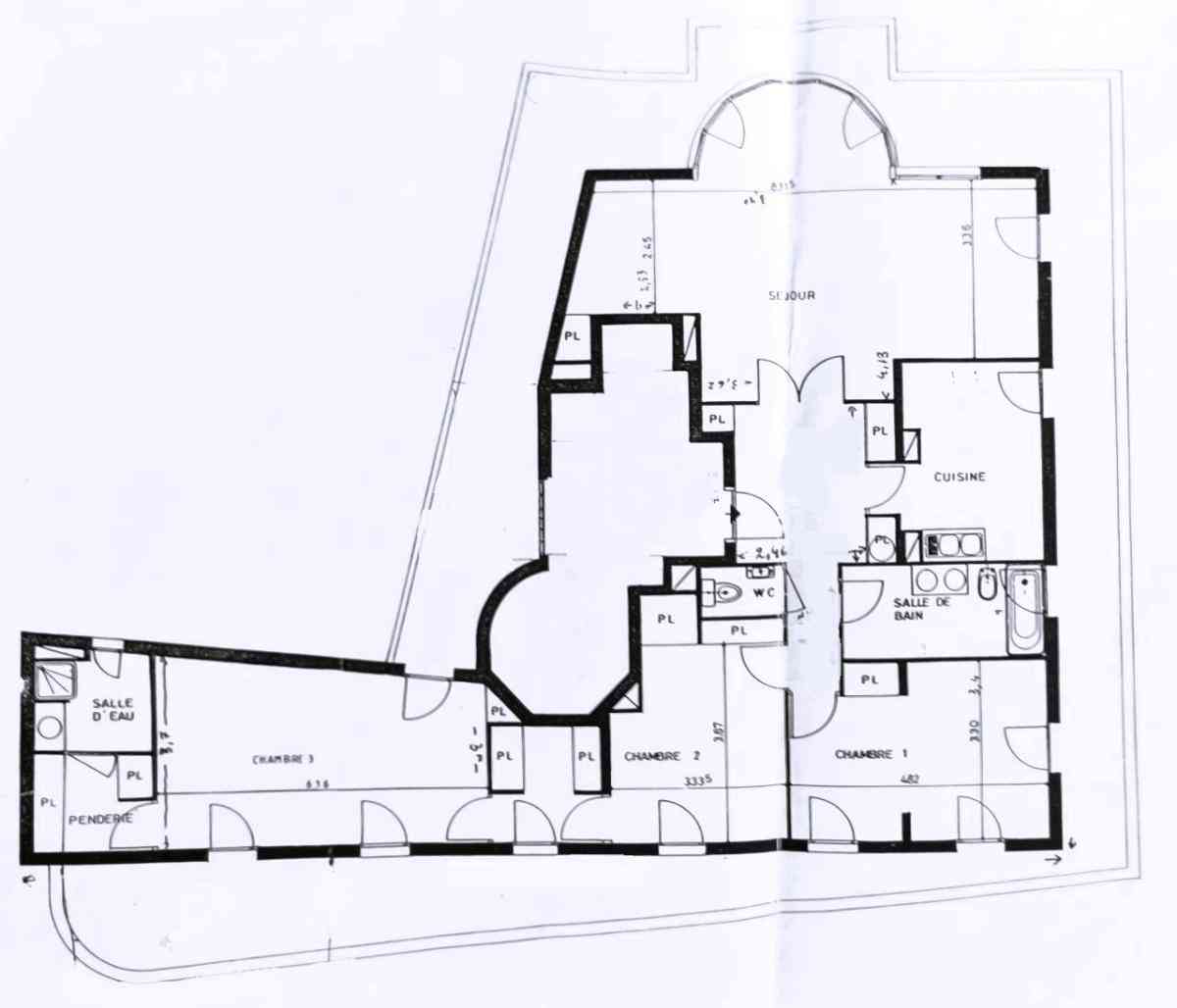
Notaire vend, au dernier étage d'un immeule de 1991, situé rue de Solférino, un appartement de 125 m² entouré d'une terrasse de 75 m². A rénover, il se compose d'une grande entrée avec placards, un double séjour avec accès à la terrasse, une cuisine dînatoire, un espace nuit constitué de 3 chambres, dont deux séparées par un dressing, un WC indépendant, une salle de bains, une salle de douche et de nombreux rangements en font un appartement très comfortable.
DPE F 331 et GES 11
Charges : 347€/mois - TF : 1.640€
Les informations sur les risques auxquels ce bien est exposé sont disponibles sur le site Géorisques : georisques.gouv.fr.
Logement économe
F
  • ≤50A
  • 51 à 90B
  • 91 à 150C
  • 151 à 230D
  • 231 à 330E
  • 331 à 450F
  • >451G
Logement énergivore
Faible émission de GES
C
  • ≤ 5A
  • 6 à 10B
  • 11 à 20C
  • 21 à 35D
  • 36 à 55E
  • 56 à 80F
  • > 80G
Forte émission de GES

133 m²

5 pièces

3 chambres

type : appartement

ville : Boulogne-Billancourt

Prix : 1 040 000 €*

*Prix net vendeur : 1 000 000 € honoraires exclus
Honoraires de 4,00 % TTC charge acquéreur

ce bien vous intéresse ?

Contactez-nous !

Joignez-nous au

Ou remplissez ce formulaire :

*champs obligatoires